
☆ 판매 토지 ☆
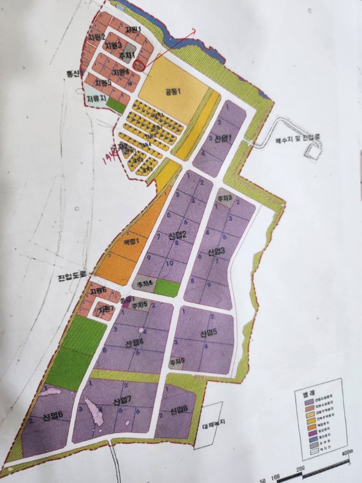
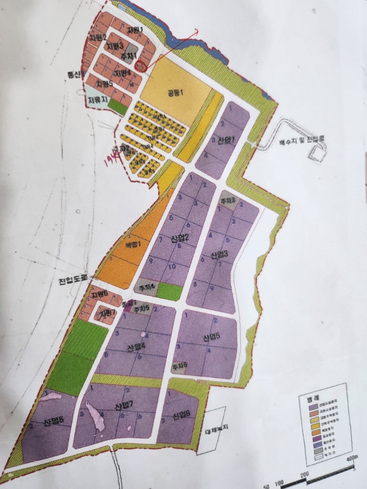
📌 경남 양산시 동면 가산리 1277-8번지 (*경남 양산 가산일반산업단지)
📌 코너형 181평
📌 낙찰가 13억 165만원
📌 건폐율 70% 이하, 용적율 350% 이하, 높이 5층 이하
📌 매도가 13억 5천 (4월 말까지 매수 조건임)


1. 왜 지금 토지 투자인가?
요즘 부동산 시장이 변화하고 있습니다. 아파트 가격이 변동성이 큰 상황에서 안정적인 수익을 원하는 투자자들은 ‘토지’에 주목하고 있습니다. 토지는 시간이 지날수록 가치가 상승하는 대표적인 투자 자산입니다. 특히, 개발 호재가 있는 지역은 몇 년 안에 2배, 3배 이상의 시세 차익을 기대할 수 있습니다.
현재 소개하는 경남 양산 가산일반산업단지는 개발 예정지 내 위치하며, 향후 도시 계획에 따라 가치가 급상승할 가능성이 높은 지역입니다. 투자 적기를 놓치지 마세요!

2. 이 토지가 특별한 이유
✅ 개발 호재: 정부 및 지자체의 개발 계획이 확정된 지역
✅ 교통 인프라: 신설 도로 및 대중교통 확충 예정
✅ 미래 가치: 주변 시세 대비 저렴한 가격, 높은 시세 상승 기대
✅ 투자 안정성: 대규모 주거 단지(아파트) 조성 예정으로 꾸준한 수요 보장
✅ 실제 사례: 인근 지역 토지, 3년 만에 200% 상승 기록
이 토지는 주거, 상업, 산업단지 개발이 예정된 지역과 가까운 곳에 위치하여 자연스럽게 가치가 상승할 수밖에 없는 조건을 갖추고 있습니다.


3. 지금 투자해야 하는 이유
경남 양산 가산일반산업단지 토지 투자에서 가장 중요한 것은 "선점 효과"입니다.
✔ 초기 투자자가 가장 큰 수익을 가져갑니다.
개발 소식이 본격적으로 퍼지기 전에 투자하면 훨씬 낮은 가격에 매입할 수 있습니다.
✔ 대기업 및 공공기관 유치 확정!
해당 지역에는 이미 대형 프로젝트가 진행 중이며, 정부의 인프라 투자도 적극적으로 이루어지고 있습니다.
✔ 향후 5년 내 급격한 시세 상승 예상
최근 사례를 보면 신도시나 산업단지가 조성된 지역은 짧은 기간 동안 2~3배 이상의 상승률을 기록하고 있습니다

4. 투자 전 체크해야 할 핵심 사항
📌 토지 이용 계획 확인:
- 해당 토지가 개발 가능한 용도인지 확인하세요.
- 정부의 도시계획 및 토지이용계획을 검토하여 장기적인 가치 분석이 필요합니다.
📌 주변 인프라 분석:
- 교통망 확충 예정 여부
- 인근 대규모 주거 단지 개발 계획 확인
- 상업시설 및 편의시설 유치 계획
📌 법적 문제 없는지 확인:
- 등기부등본 확인
- 토지 거래 허가 여부 체크



5. 최적의 투자 전략
✅ 단기 vs. 장기 투자 선택:
- 개발 예정지가 확정된 곳은 단기 투자도 가능
- 장기적으로 보유하면 더 큰 시세 차익 기대
✅ 분할 매입 전략 활용:
- 한 번에 큰 금액을 투자하는 것보다 나눠서 투자하는 것이 유리할 수 있음
✅ 임대 수익까지 고려:
- 일정 기간 보유하면서 경작지, 주차장 등으로 활용하여 임대 수익 창출 가능


6. 지금 바로 상담하세요!
경남 양산 가산일반산업단지 토지 투자는 빠르게 결정할수록 더 큰 이익을 가져가는 게임입니다.
이 지역의 개발 소식이 본격적으로 알려지기 전에 미리 선점하는 것이 관건입니다.
📞 문의 전화: 010-8040-5000
📍 현장 방문 예약 가능 (사전 예약 필수)
안전한 투자, 확실한 수익을 원하신다면 지금 바로 상담해보세요!